Seguinos en:
Ramón Falcón 5360
Viviendo el
Barrio
Ficha Técnica
  • Fin de obra2024
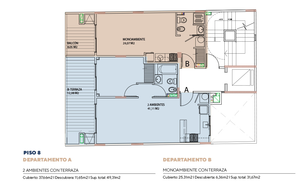
  • TipologíasMonoambiente y 2 ambientes
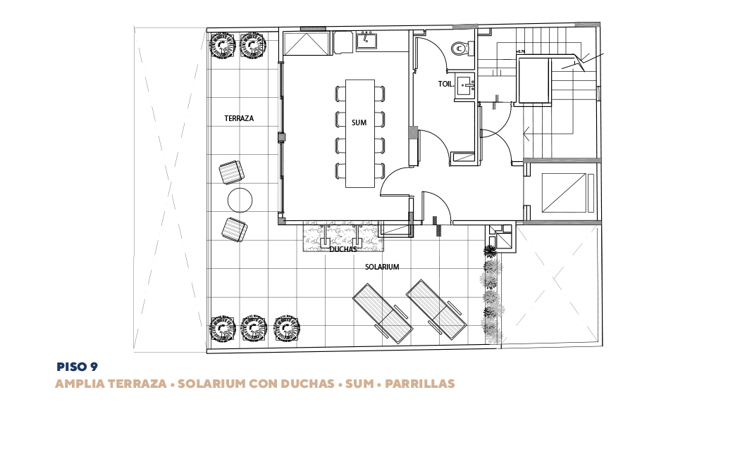
  • AmenitiesSUM - Parrillas

Ramón Falcón 5360

Es un proyecto residencial que nos acerca al boulevard y a su polo gastronómico sin abandonar la tranquilidad de las calles interiores del pintoresco y tradicional barrio de Villa Luro. Ramón Falcón 5360 ofrece lo mejor de la zona: calidad, confort, ubicación, tranquilidad y cercanía. Para disfrutar del barrio en todos sus aspectos.

Innovacion y Desarrollo

NORDIK
Un lugar donde la tradición se fusiona con la modernidad

La atmósfera acogedora y la diversidad de sabores hacen de Ramón Falcón un lugar ideal para disfrutar de una experiencia culinaria única en la ciudad, creando un ambiente único y lleno de encanto. Déjate cautivar por sus pintorescas calles, su vibrante energía y su exquisita oferta gastronómica y cultural. Descubre un rincón especial donde cada paso te lleva más cerca de la autenticidad y la elegancia.

Fotos

PLANTAS

Tipologías 1 y 2 ambientes

Ramón
Falcón
5360
Villa
Luro
Buenos
Aires
Ramón
Falcón
5360
Villa
Luro
Buenos
Aires
Scroll