Seguinos en:
Manzoni 72
Ubicación y
Diseño
Ficha Técnica
  • Fin de obra2017
  • TipologíasMonoambiente y 2 ambientes
  • AmenitiesSUM - Parrillas

Manzoni 72

Es un proyecto residencial que se destaca por su ubicación estratégica, su calidad de diseño y la atención a los detalles. Su inmejorable ubicación, a pasos de todo, lo convierte en un aliado para una vida activa en el corazón del barrio.

Fotos

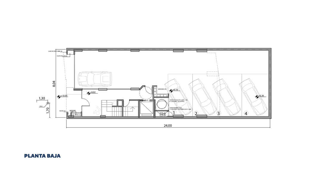
PLANTAS

Tipologías 1 y 2 ambientes

Manzoni
72
Villa
Luro
Buenos
Aires
Manzoni
72
Villa
Luro
Buenos
Aires
Scroll